
粤进深 赵盼盼 备受关注的万丰海岸城新一期项目“檀府”,预计于本周内取证入市。
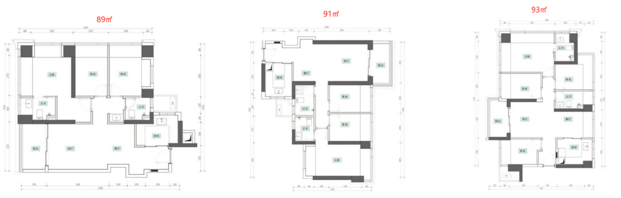
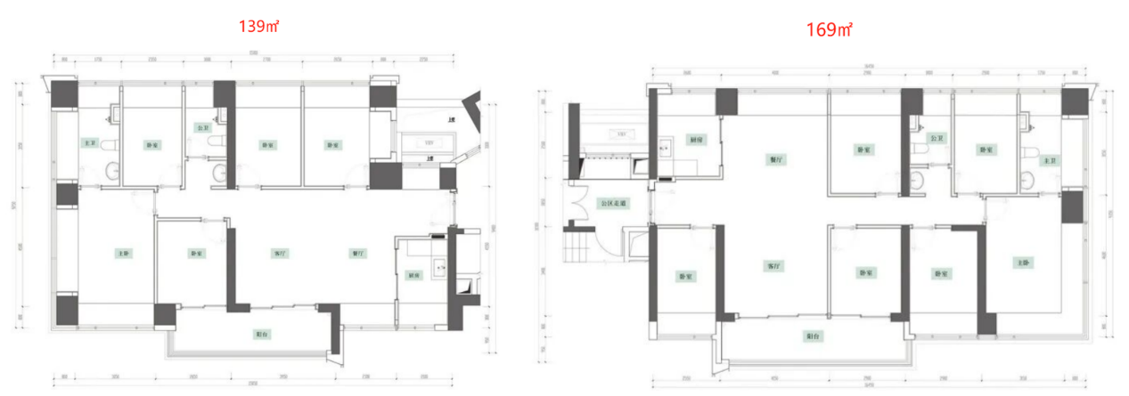
项目将推出建面约89-91㎡三房,93-103-121-125㎡四房,139㎡五房以及169㎡六房产品,使用率最高达104%。
全面覆盖从刚需到改善的不同置业需求。
价格也已曝出,吹风三房均价4.7万元/㎡左右,四房均价5-5.3万元/㎡左右,五至六房均价5.4-5.6万元/㎡。(具体价格已开盘为准)



万丰海岸城整体规划建筑面积超过500万平方米,集商业、住宅、产业、甲级写字楼、酒店等于一体,是超大型城市综合体项目。
该项目由海岸新城投资负责开发建设,是深圳海岸集团和万丰股份合作开发的项目。
其最早是万丰南山工业区及万丈埔工业区(一区)片区城市更新单元,涉及拆除用地面积约25万平方米,并且将扩容周边约70万平方米拆改范围,是一个实打实的旧改巨无霸。

目前,万丰海岸城已打造多个项目,包括锦园、珑园、珺园、玺园、海岸大厦(三期)、瑧园(三期)、瀚府(四期)等。
其中珑园、珺园均为回迁房,锦园为商品房保障房,玺园、瑧园、瀚府为商品房。
新一期项目檀府,分南北两个地块组成,总占地面积约3.64万m²,总建筑面积约36.24万m²,计容建筑面积约26.37万m²。
共有7栋超高层住宅和1所幼儿园,其中5栋商品房住宅,2栋保障房,规划总户数2496户,包括普通商品房1392户,保障房1104户。

项目建设单位是深圳市海岸新城投资有限公司(简称“海岸新城投资”)成立于2013-12-04,注册资本17亿元,法定代表人、董事长为陈波。
该公司由深圳市海岸房地产开发集团有限公司、深圳市信通瀛投资有限公司、深圳市海岸西部投资有限公司分别持股55%、25%、20%。
海量资讯、精准解读,尽在新浪财经APP
股票10万可以做杠杆吗,最大的合法配资平台,股市配资提示:文章来自网络,不代表本站观点。